Casa Cerrado / CoGa Arquitetura

Casa Cerrado / CoGa Arquitetura - Fotografia de Interiores, Janela, Viga, DormitórioCasa Cerrado / CoGa Arquitetura - Fotografia de Interiores, Sala de Estar, Sofá, MesaCasa Cerrado / CoGa Arquitetura - Fotografia de Interiores, Sala de Estar, Mesa, Cadeira, JanelaCasa Cerrado / CoGa Arquitetura - Fotografia de Exterior, Porta, Fachada, JanelaCasa Cerrado / CoGa Arquitetura - Mais Imagens+ 28

Brasília, Brasil
  • Arquitetos: CoGa Arquitetura
  • Área Área deste projeto de arquitetura Área:  460
  • Ano Ano de conclusão deste projeto de arquitetura Ano:  2014
  • Fotógrafo
    Fotografias:Joana França
  • Fabricantes Marcas com produtos usados neste projeto de arquitetura
    Fabricantes:  Borrile Metalúrgica, Ecoblock, Portobello
Mais informaçõesMenos informações
Casa Cerrado / CoGa Arquitetura - Fotografia de Exterior, Janela, Tijolo, Escada, Fachada
© Joana França

Descrição enviada pela equipe de projeto. Casa no Cerrado integrada a natureza onde os cachorros, paixão dos proprietários, pudessem circular livremente. Construída em estrutura metálica, teve seu projeto modulado para evitar desperdícios e teve sua obra finalizada em 8 meses. Foram estas algumas premissas dos clientes, ele um Engenheiro e ela uma Professora de Yoga, para o projeto de sua casa em Brasília. 

Casa Cerrado / CoGa Arquitetura - Fotografia de Interiores, Sala de Estar, Cadeira
© Joana França
Planta - Térreo
Casa Cerrado / CoGa Arquitetura - Fotografia de Interiores, Sala de Estar, Sofá, Mesa
© Joana França

O projeto foi desenvolvido para um casal com cachorros que pretendia construir de madeira mais sustentável. Como premissa decidimos pela estrutura metálica modular para evitar desperdícios na obra e reduzir o tempo de execução. Buscamos o melhor aproveitamento do terreno, a maior insolação na fachada Norte e a melhor vista. Optamos pela implantação longitudinal neste sentido e aproveitamos o desnível natural do terreno para setorizar os acessos: fachada Oeste acesso social e fachada Leste acesso de serviço. A fachada Sul divisa com o muro dos vizinhos é praticamente cega.

Casa Cerrado / CoGa Arquitetura - Fotografia de Interiores, Cozinha, Bancada, Pia, Janela
© Joana França
Corte - Longitudinal
Casa Cerrado / CoGa Arquitetura - Fotografia de Interiores, Vidro, Fachada, Corrimão
© Joana França

Na cota média do terreno implantamos o pavimento térreo. Neste nível a casa se desenvolve com acesso livre para os cachorros que não podiam subir escadas por problemas de articulação. A união da Suíte Master, Sala, Cozinha e Lazer em um único pavimento propicia que os moradores possam usufruir o dia a dia sem necessidade de subir escadas. Neste pavimento, na fachada Oeste, utilizamos um brise em réguas de resíduos de madeira reciclada, buscando promover privacidade de um lote vizinho e proteção da insolação menos favorável nos tempos de seca em Brasília. Neste trecho da fachada, atrás do brise, criamos uma jardineira para uma horta de temperos próxima à Cozinha. A grande Varanda localizada na fachada Norte faz a transição entre exterior e interior promovendo um ambiente sombreado e ventilado para os dias de maior calor. Neste espaço a piscina e uma árvore frutífera participam como protagonistas do espaço de convívio.

Casa Cerrado / CoGa Arquitetura - Fotografia de Interiores, Janela, Viga, Dormitório
© Joana França

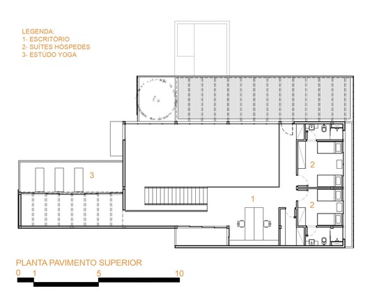
No pavimento inferior localizamos a Garagem e a oficina mecânica para motos, hobby do cliente. No pavimento superior localizamos as Suítes de Hóspedes, o Escritório e o estúdio de Yoga.

Casa Cerrado / CoGa Arquitetura - Fotografia de Exterior, Fachada
© Joana França

Galeria do Projeto

Ver tudoMostrar menos
Sobre este escritório
Cita: "Casa Cerrado / CoGa Arquitetura" 08 Jun 2020. ArchDaily Brasil. Acessado . <https://www.archdaily.com.br/br/941188/casa-cerrado-coga-arquitetura> ISSN 0719-8906

¡Você seguiu sua primeira conta!

Você sabia?

Agora você receberá atualizações das contas que você segue! Siga seus autores, escritórios, usuários favoritos e personalize seu stream.